歡迎訪問浙江維思無線網絡技術有限公司
1.產品介紹
世界性能源危機促進了新能源產業的迅猛發展,光伏作為目前最常見的太陽能轉化技術在很大程度上減輕了現有生產生活對傳統能源的依賴。對光伏板進行日照追蹤設計,可以有效提升單塊光伏板獲取的日照強度,從而提升單個光伏板的發電效率。
光伏板使用的日照追蹤系統,通常分為單軸和雙軸兩個基本類型,單軸日照追蹤系統在俯仰或方位上對日照來向進行追蹤,雙軸日照追蹤系統在俯仰和方位兩個維度上對日照來向進行追蹤。通常,安裝日照追蹤系統通常會使項目前期成本增加大約2%-10%。相對于固定式安裝,采用單軸日照追蹤系統的光伏板平均發電量可提升大約5%。采用雙軸日照追蹤系統的光伏板平均發電量可提升大約20%。目前由于雙軸追光系統的造價較高,盡管有更高的發電效率,但對于大部分項目而言,目前采用單軸日照追蹤系統的光伏發電系統比采用雙軸日照追蹤系統的發電系統可以更快收回安裝系統增加的前期成本,較少采用雙軸追光系統。
維思光伏雙軸追光系統(以下稱簡稱追光支架)應用于單個光伏組件,利用日-地關系時間確定性的先驗知識(太陽軌跡只與時間相關),采用創新型單電機、單絲桿的雙軸驅動結構,依據組件所處緯度與時間或最優功率反饋來控制光伏板的方位角和俯仰角,實現組件級光伏最優發電效能,發電量提升>15%。追光支架系統摒棄了市場普遍采用的標準化大規模集成方案,轉而采用小型化單組件一對一布局策略。針對分布式光伏電站的實際應用需求,單組件雙軸追光支架通過采用輕量化、高強度、高可靠性、高效生產工藝和新材料設計,在保持整體系統靈活性的同時,單位功率成本僅為集中式雙軸追光支架的30%,大幅度降低了追光支架的單位發電量成本的同時大幅度提升了系統可靠性,單一組件追光系統的故障不影響電站整體高效發電。此創新方法不僅提升了光伏電站的發電效率和可靠性,還顯著增強了項目的經濟可行性,為業主帶來了更為可觀的長期投資回報與經濟效益。維思的單組件雙軸追光支架其結構簡單、成本低廉、可靠性高的特性適用于各類分布式(不同維度地區)電站項目應用場景。
該支架的結構設計重點關注穩定性和耐久性,采用單組件單追光架的設計,有效地減少了風阻,并采用多連桿設計也增強了整體結構的穩固性,從而實現長期免維護的運行。最重要的是,這種光伏跟蹤支架具有極強的地區適應性,可以根據不同地理位置的緯度調整安裝角度,以獲得最佳的發電效率。本支架的安裝方式與固定支架基本一致,安裝于標準化的水泥基礎上,安裝過程簡便快捷,具有很強的適配能力和可靠性。

WSP-PTS 光伏跟蹤系統(追光支架)
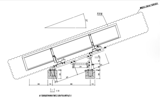
備注:光伏跟蹤支架后支架可根據不同地區緯度改變相對高度以適配不同地區最佳傾角。
2.功能特點
? 成本低廉:采用單電機+單絲桿驅動實現雙軸追光的功能,主要結構零部件采用標準型材,實現低成本高可靠追光。
? 控制算法簡單:本產品根據裝置所處經緯度的日出日落時間算法追蹤陽光,算法簡單、控制可靠,實現低成本高可靠控制。
? 結構穩定可靠:相較于傳統的單雙軸追光支架,本產品采用單光伏板搭配單支架,有效降低風阻的同時,絲桿螺母配合多連桿的結構使得支架整體相對穩固,可長期免維護工作。
? 安裝便利,適配能力強:本產品可根據不同地區緯度調整安裝傾角以獲得最大發電增益,支架通過標準型材安裝于標準水泥基礎之上,安裝方便可靠。
3.技術指標
A. 跟蹤范圍:東西向±30°,南北向±20°;
B. 跟蹤誤差:±0.5°;
C. 設計風速:32m/s;
D. 驅動方式:無刷行星齒輪減速電機;
E. 架構材質:不銹鋼/熱浸鋅材料;
F. 控制方式:基于日出日落時間陽光跟蹤跟蹤算法;
G. 標準配置:單支架+單光伏板;
H. 供電方式:外部供電+24V/2A(峰值);
I. 平均功耗:<0.1W;
J. 防護等級:IP66;
K. 工作環境:-30°到+85°;
L. 組件固定方式:螺栓,壓塊;
M. 安裝方式:標準水泥基礎+標準型材;
N. 免維護工作時間:驅動件10年,結構件25年。
4.結構展示
5.發電效率實測數據(晴天,單組件比較)
根據實測,晴天追光支架發電總量比固定支架發電總量多15%。
1
2024-08-01 15:43:22這個產品很好,提高了很多發電量。
2024-08-01 14:16:16這是白眉鷹王殷天鎮設計的嗎?
2024-08-01 14:14:53